
Ieper – Rond het Jan Yperman Ziekenhuis en de dorpskern van Sint-Jan komt er een groot ecologisch landschapspark. Er kwam de laatste jaren in Ieper al wat groen bij, maar dit 15 ha grote landschapspark in Sint-Jan moet het hoogtepunt worden. De stad kiest voor een ecologisch ontwerp, waarbij water, beleving, erfgoed en ecologie centraal staan. Het park zal voor voor mensen, planten en dieren een waardevolle plek worden.
In het noordoosten van Ieper is er momenteel amper publiek groen. Het nieuwe landschapspark zorgt voor welgekomen toegankelijke natuur: voor inwoners, passanten, patienten en bezoekers van het Jan Yperman Ziekenhuis betekent dit een een oase van rust waar men kan pauzeren, wandelen en fietsen..
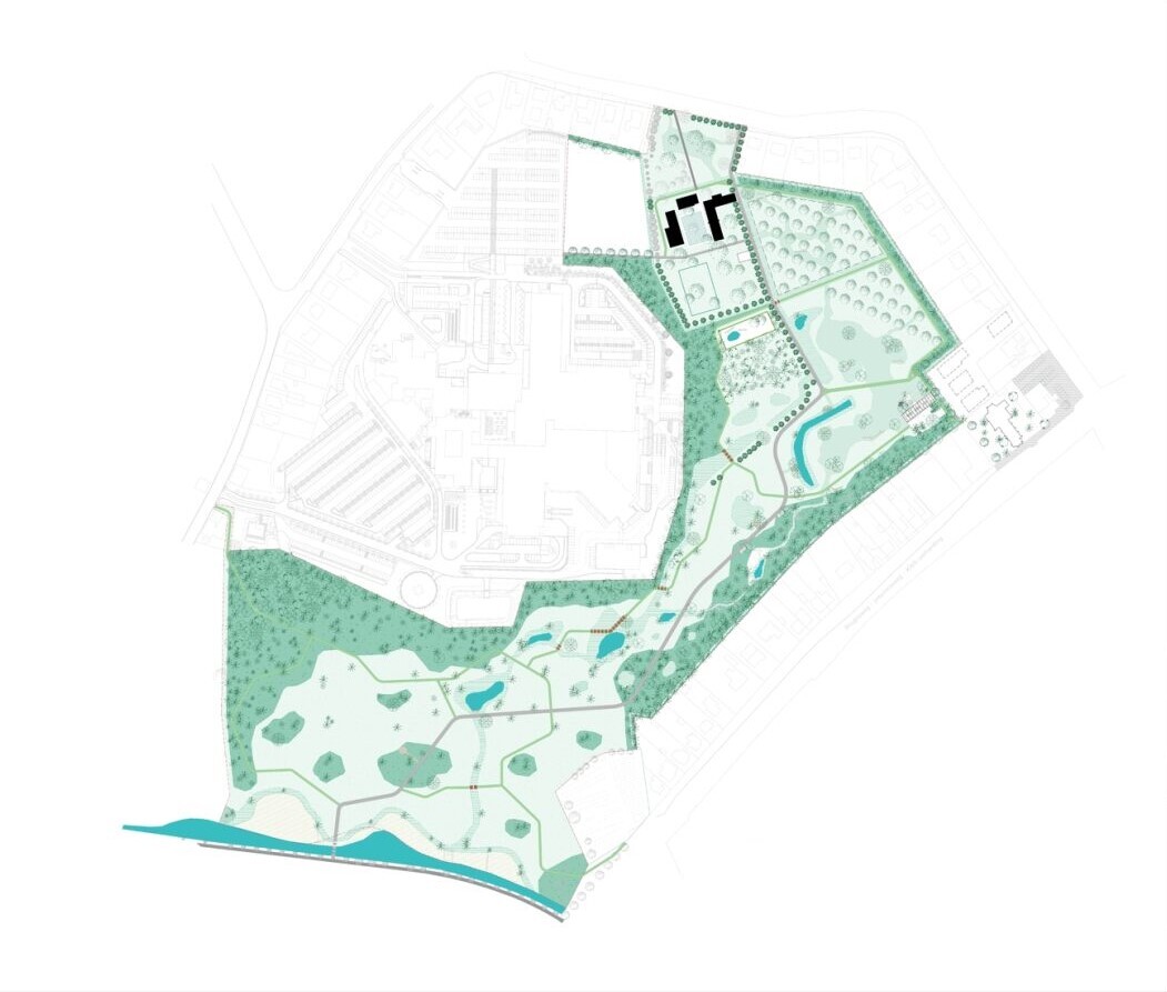
Centraal doorheen het park van 15 ha komt een wandel- en fietspad met nieuwe brug over de Bellewaerdebeek. Er is plaats voor robuuste natuur met veel water, een avontuurlijke speelzone, dorpsweide, boomgaard, voedselbos en hondenlosloopweide.
Het water wordt zo veel mogelijk ter plaatse geïnfiltreerd in poelen en grachten zodat het niet meer versneld afstroomt en elders geen problemen veroorzaakt. Alleen het wateroverschot dat te snel komt, stroomt rechtstreeks naar de Bellewaerdebeek. Door veel ruimte voor water en bomen te voorzien zal het park ook voor verkoeling zorgen tijdens warme zomers.
Bijna 800 jaar geleden bouwde men hier ‘leprozerie’, een plek waar de melaatsen in een afgezonderde gemeenschap leven en verzorgd worden. Halfweg de 17e eeuw verdwijnt de ziekte en wordt de vrijgekomen grond van de leprozenhuizen bij de hoeve ‘Goed der Hoge Zieken’ gevoegd die al deel uitmaakte van de zorginstelling. De vierkantshoeve wordt bewoond tot kort voor de Eerste Wereldoorlog. Op verschillende plaatsen doorheen het park zal dit erfgoed in de kijker worden geplaatst.
De werken zullen in fases verlopen. In februari 2024 wordt een struikengordel achter de woningen langs de Groenestraat in Sint-Jan aangeplant. De stad hoopt met de grondwerken en de aanleg van de wandelpaden te starten in de loop van 2024.
De stad is afhankelijk van subsidies voor de ontwikkeling van het park. Er is al financiële steun toegezegd door het Agentschap voor Natuur en Bos en de Provincie West-Vlaanderen. Daarnaast steunen Kronospan, Rotary Club Ieper en Lions Club Ieper-Poperinge het project. In januari 2024 wordt duidelijk of er ook vanuit Europa financiële steun komt.
Op zondag 15 oktober organiseerde de stad een infomoment voor inwoners en geïnteresseerden. Tijdens dit evenement konden bezoekers meer te weten komen over het ontwerp en de plannen voor het park. De opkomst was groot en er was veel enthousiasme voor het project.
In juli 2021 werd het gemeentelijk ruimtelijk uitvoeringsplan (GRUP) Jan Yperman en omgeving goedgekeurd. Dit plan legt de stedenbouwkundige voorschriften vast voor een groot gebied in het noordoosten van Ieper. Een gebied van bijna 15 hectare wordt voorzien als park.
In april 2022 werden studiebureaus Studio Basta, Feryn Milieuconsulenten en Atelier Ruimtelijk Advies aangesteld voor de studieopdracht. Samen geven zij vorm aan dit nieuwe park.
In mei 2023 keurde het College van Burgemeester en Schepenen het voorontwerp van het park goed.
In het voorjaar van 2024 wordt het ontwerp afgewerkt en het vergunningstraject opgestart.

Ontdek meer van Bouwend Ieper
Abonneer je om de nieuwste berichten naar je e-mail te laten verzenden.